При работах по ремонту и перепланировке помещений может возникнуть потребность сделать расширение дверного проема в кирпичной стене. В некоторых случаях владельцы квартир и домов хотят заложить уже имеющиеся дверные или оконные проемы и сделать новые в более удобных местах. Далее будет рассказано о том, как правильно расширить дверной проем с соблюдением всех норм и требований и как оформить разрешительную документацию.


Особенности выполнения работ
Расширение оконного проема в кирпичной стене, равно как и дверного, выполняется с учетом конструкции стен. Стены делятся на несколько типов. Несущие конструкции помимо своего веса принимают и передают основанию вес потолочных перекрытий, лестниц, крыши и т.д.


Самонесущие стены принимают вес стен всех этажей дома и опираются на основание. На ненесущие конструкции воздействует только собственный вес, который поэтажно передается на другие части здания. В зависимости от планировки здания несущая стена может располагаться и внутри квартиры, поэтому расширение входов может потребовать получения разрешительной документации.
Выполнять строительные работы без предварительного согласования проекта запрещено, так как они могут привести к разрушению находящихся выше этажей. Переходим к непосредственным работам по расширению входов. Подобные работы могут выполняться по двум технологиям. Первый вариант применяется для расширения входов в самонесущих и несущих стенах, второй — при работах с ненесущими стенами и кирпичными перегородками.
Расширение проемов в несущих стенах
Для выполнения расширения проема вам потребуются такие материалы и инструменты:


- швеллеры;
- перемычка;
- шпильки с гайками;
- болгарка;
- маркер;
- перфоратор;
- металлические уголки;
- стальные полосы;
- сварочный аппарат.
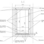
Перед началом работ над входом необходимо установить усиливающую металлическую перемычку. Со стены удаляют слой штукатурки в местах, предусмотренных для формирование проема. Делается это так, чтобы стала видной кирпичная кладка и перемычка. Границы будущего проема размечают грифелем или мелом. Нельзя делать отверстие в стене длиной более 2 м, так как неправильное распределение нагрузок может привести к обвалу стены.
ли имеется потребность в формировании такой конструкции, требуется установка опорного столба — колонны. Если перемычка оказывается короче запланированной ширины проема, ее подпирают стойками при выполнении работ. Перемычка частично принимает на себя вес расположенных выше конструкций, и вы можете спокойно выполнять работы. Края прогона должны выступать за границы строящегося проема на 25 см с каждой стороны.


Рассмотрим самый распространенный вариант обрамления входа двумя парными швеллерами, которые скрепляют между собой шпильками с гайками. Перед монтажом новой перемычки в стене над проемом делаются специальные ниши. Глубина ниши, в которую будет устанавливаться швеллер, должна соответствовать его размеру, чтобы он не выпирал над кирпичной кладкой и после окончания работ остался под штукатуркой. Для скрепления швеллеров необходимо использовать не менее 3 шпилек диаметром более 15 мм.
Перед стягиванием швеллеров для обеспечения наибольшей прочности конструкции ниши заполняют бетонным раствором М-100, заполняющим неровности. В стенках швеллеров проделываются отверстия соответствующего диаметра. Швеллер ставится в нишу, с помощью маркера размечают сквозные отверстия в стене. После их просверливания устанавливаются перемычки. Теперь можно начинать разбирать кирпичную кладку для того, чтобы увеличить дверной проем. При расширении дверных и оконных проемов необходимо сформировать отверстие с ровными краями, что возможно при выпиливании частей кладки болгаркой. Из-за образующейся при этом пыли все работы необходимо выполнять в респираторе. После резки разбирать кирпичи можно перфоратором. Если длина перемычки оказывается меньше ширины входного отверстия, то ее убирают.
На следующем этапе устанавливают боковые стойки, верхние части которых совмещаются с перемычкой. Делаются они из металлических уголков 7-10 см. На стыке уголков жесткости их приваривают к перемычке. Стойки должны быть накрепко зафиксированы, для чего их соединяют между собой стальными полосками по толщине стены. К полоскам приваривают вбитые к стену арматурные прутья. В нижней части проема устанавливается распорка из арматуры или металлических уголков, которая потом останется под полом. Все металлические части сваривают в единый каркас, называемый обоймой. Возможно увеличение дверного проема с укреплением перемычки уголками. Друг с другом они скрепляются стягивающими стальными полосами.
Расширение проемов в ненесущих стенах


Увеличение оконных отверстий в кирпичных стенах такого характера выполнить намного проще. Перегородки имеют меньшую, чем несущие стены, толщину. Соответственно, расширение входа в них будет требовать минимальных трудовых затрат. Выполняются работы практически по той же технологии, что и на несущих стенах. На поверхности стены рисуют контур будущей конструкции, после чего кирпичную кладку разбирают, старую перемычку демонтируют. Над увеличенным проемом устанавливается перемычка большей длины, поверх которой кладется кирпичная кладка. После выполнения расширения составляется акт скрытых работ, который должны подписать представители технического надзора. После этого можно приступать к оштукатуриванию стен. Для того чтобы штукатурка сцеплялась с металлическими элементами конструкции, их обтягивают сеткой рабица.
В качестве заключения
Выполнять расширение проема в кирпичной стене без предварительного согласования проекта нельзя. Самовольно начатые работы способны привести к разрушению верхних этажей здания.
Разбирать кирпичную кладку следует только после установки перемычки и опорных стоек, обрамлять проем следует с помощью пары швеллеров.